Tacoma Landmarks Commission briefing planned for historic Winthrop Hotel
Published 12:32 pm Friday, January 23, 2015
Are you interested in learning more about the future of the historic Winthrop Hotel in downtown Tacoma? If so, a public meeting next week at Tacoma City Hall could offer some insight.
Tacoma’s Landmarks Preservation Commission will be briefed Wednesday on the latest property condition report for the 12-story, 90-year-old former hotel, which is located at 776 Commerce St. in the city’s Old City Hall Historic District, and listed on Tacoma, Washington State, and national historic registers. At one point, the grand hotel boasted a penthouse suite (see “Inside the Winthrop,” Tacoma Daily Index, June 2, 2009) and offered live entertainment in the Crystal Ballroom.
- The Winthrop Hotel in downtown Tacoma, which was built in 1925, is in need of millions of dollars in deferred maintenance. A view from the penthouse level. (FILE PHOTO BY TODD MATTHEWS)
- The Winthrop Hotel in downtown Tacoma, which was built in 1925, is in need of millions of dollars in deferred maintenance. A view from the penthouse level. (FILE PHOTO BY TODD MATTHEWS)
- The Winthrop Hotel in downtown Tacoma, which was built in 1925, is in need of millions of dollars in deferred maintenance. A view inside the penthouse suite. (FILE PHOTO BY TODD MATTHEWS)
- The Winthrop Hotel in downtown Tacoma, which was built in 1925, is in need of millions of dollars in deferred maintenance. A view from the penthouse level. (FILE PHOTO BY TODD MATTHEWS)
The building was converted to apartment housing for seniors 40 years ago (see “Winthrop history, development ideas equally storied,” Tacoma Daily Index, June 4, 2009), and currently offers nearly 200 apartment homes that serve residents in need of low-income and affordable housing. Tacoma-based Prium Companies purchased the Winthrop Hotel in 2007. Three years later, the building was back on the market after the company’s co-founders declared bankruptcy. Burlingame, Calif.-based Redwood Housing Partners purchased the property last year.
A property condition assessment report prepared nearly six years ago showed the building was in need of nearly $16 million in repairs and upgrades (see “A Building on the Brink: Add nuisance report, falling debris to Winthrop’s woes,” Tacoma Daily Index, Aug. 19, 2011; “A Building on the Brink: A line-item look at Winthrop’s hefty deferred maintenance bill,” Tacoma Daily Index, Aug. 10, 2011; and “A Building on the Brink: Property report puts $15.7M price tag on Winthrop Hotel’s deferred maintenance,” Tacoma Daily Index, Aug. 9, 2011).
Les Tonkin, a principal architect at Tonkin Architecture, is scheduled to brief Tacoma’s Landmarks Preservation Commission on the latest assessment during a public meeting at 5:30 p.m. on Weds., Jan. 28, at the Tacoma Municipal Building, 747 Market St., Conference Room 248, in downtown Tacoma. Copies of the agenda, meeting materials, and property condition assessment report are available online here.
***UPDATE*** Tues., Jan. 27 @ 2:40 p.m. — If you have followed news surrounding the former Winthrop Hotel, the latest property condition assessment report will probably pique your interest because it provides a glimpse inside two areas of the building typically off-limits to the general public — the penthouse suite and the Crystal Ballroom. Here are some interesting details.
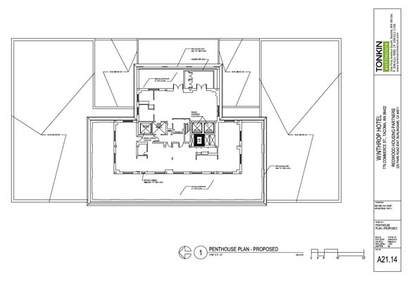
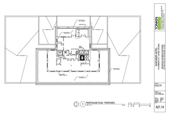
Regarding the penthouse suite, here are some images from the report:
Here is the report’s “Description of Existing Condition and Proposed Work” for the penthouse suite:

Regarding the Crystal Ballroom, here is a photo from the report:

Here is the report’s “Description of Existing Condition and Proposed Work” for the Crystal Ballroom:

In 2009, the Tacoma Daily Index published a series of interviews with residents of the Winthrop Hotel. To read the complete series, click on the following links:
- A Voice From the Winthrop: Glenn Grigsby (Tacoma Daily Index, June 16, 2009)
- A Voice From the Winthrop: Otha Adams (Tacoma Daily Index, June 26, 2009)
- A Voice From the Winthrop: Nanette Colby (Tacoma Daily Index, July 15, 2009)
- A Voice From the Winthrop: John Heffler (Tacoma Daily Index, July 30, 2009)
- A Voice From the Winthrop: David Allen (Tacoma Daily Index, August 13, 2009)
- A Voice From the Winthrop: David Miller (Tacoma Daily Index, August 20, 2009)
- A Voice From the Winthrop: Kerry Hudson (Tacoma Daily Index, August 27, 2009)
- A Voice From the Winthrop: Jessica Creso (Tacoma Daily Index, September 1, 2009)
To read the Tacoma Daily Index‘s complete and comprehensive coverage of the Winthrop Hotel, click on the following links:
- Year In Review: Historic Preservation Legislation (Tacoma Daily Index, Dec. 26, 2013)
- A Building on the Brink: Add nuisance report, falling debris to Winthrop’s woes (Tacoma Daily Index, August 19, 2011)
- A Building on the Brink: A line-item look at Winthrop’s hefty deferred maintenance bill (Tacoma Daily Index, August 10, 2011)
- A Building on the Brink: Property report puts $15.7M price tag on Winthrop Hotel’s deferred maintenance (Tacoma Daily Index, August 9, 2011)
- Leaving The Winthrop (Tacoma Daily Index, August 17, 2010)
- 7-year prison sentence for Winthrop arsonist (Tacoma Daily Index, April 23, 2010)
- Accused Winthrop arsonist pleads guilty (Tacoma Daily Index, February 2, 2010)
- Year In Review: Winthrop Hotel (Tacoma Daily Index, December 29, 2009)
- Living On Edge: Inside the Winthrop arson investigation (Tacoma Daily Index, October 23, 2009)
- Winthrop resident accepts Safe Streets award (Tacoma Daily Index, September 16, 2009)
- Winthrop resident named Safe Streets Superstar (Tacoma Daily Index, September 10, 2009)
- Cleaning up a neighborhood, battling a building’s reputation (Tacoma Daily Index, August 25, 2009)
- Crime Stoppers offers $1,000 reward for Winthrop serial arsonist (Tacoma Daily Index, August 21, 2009)
- Historic hotel or housing? Tough economy shines realistic light on Winthrop development plan(Tacoma Daily Index, August 4, 2009)
- Winthrop history, development ideas equally storied (Tacoma Daily Index, June 4, 2009)
- Inside the Winthrop (Tacoma Daily Index, June 2, 2009)
- THA weighs Winthrop building purchase (Tacoma Daily Index, May 29, 2009)
- One dead in Winthrop Hotel fire (Tacoma Daily Index, March 25, 2008)
- Resolution would sell City-owned property for mixed-income housing (Tacoma Daily Index, October 29, 2007)
- Developer eyes City surplus property for Winthrop Hotel project (Tacoma Daily Index, September 26, 2007)
- Winthrop vote illuminates city’s affordable housing concerns (Tacoma Daily Index, March 22, 2006)
- Council resolution on Winthrop rehab expected tonight (Tacoma Daily Index, March 21, 2006)
- Council may vote on whether it supports Winthrop rehabilitation plan (Tacoma Daily Index, March 20, 2006)
- Winthrop repairs mean no evacuations (Tacoma Daily Index, December 19, 2005)
Todd Matthews is editor of the Tacoma Daily Index, an award-winning journalist, and author of A Reporter At Large: A decade of Tacoma interviews, feature articles, and photographs and Wah Mee. His journalism is collected online at wahmee.com.
